佐土原町・新富町・国富町の土地と中古住宅や任意売却のことなら、合同会社プロニティにお任せください。

平成19年創業。任意売却専門会社としての豊富な実績があります。
合同会社プロニティ
〒880-0211 宮崎県宮崎市佐土原町下田島12219番地133
サンビレッジ宮本101号
何なりとお気軽にお問合せください
0985-73-3462
GO!プロニティ | 9:00~18:00。不定休。 |
|---|
佐土原町「下那珂」と「石崎」の境界付近、シーサイドタウン佐土原の裏手に位置する1300㎡の土地に440㎡の居宅倉庫があります。
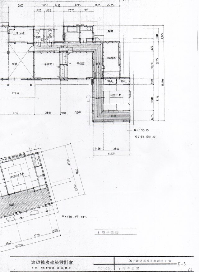
杉檜良材をふんだんに使用した本格和風木造住宅です。サクラフローリング材の広い廊下・30センチ角磨きケヤキ大黒柱・30センチ角背割りヒノキ通し柱など素晴らしいです。天井が高く採光窓も広く取ってあるので、室内にいて開放感に浸ることができますよ。
本当は写真を掲載したいところですが、下の間取図で想像を巡らしてみてください。
都市計画道路『石崎通線』は本物件前で工事が中断した状態です。地元では道路計画が廃止になったと思われているのですが、平成19年宮崎市都市計画マスターウラン見直しの中で「事業廃止とするか要検討」とされたまま現在にいたっています。ですから、本物件土地は都市計画道路に抵触する可能性がありますーとするのが正確でしょう。都市計画整備課においても建替えなどの際に一定の制限があると説明されます。
内覧希望の方は事前にご連絡ください。当社で簡単なヒアリングをさせていただき破産管財人と居住者が日程調整を行います。【お客様へのお願い】をご確認ください。
何なりとお気軽にお問い合わせください。
| 所在地 | 佐土原町下那珂 | 価格 | 3000万円 価格交渉可 |
| 土地 | 1300.71㎡ | 建物 | 439.32㎡
|
| 築年月日 | 平成2年新築 | 現況 | 居住中
|
| 間取り |
| 取引態様 | 仲介 |
| 交通 | 宮崎交通御殿下バス停徒歩10分 |
|
|
| 情報登録日 | 2025/9/3 | 次回更新予定日 | 2025/10/2 |

